Omul de afaceri Valentin Rădeanu cere acord de mediu pentru un ansamblu de imobile lângă noul Spital Regional

Ziarul de Interes
2 min de citit
SHARE

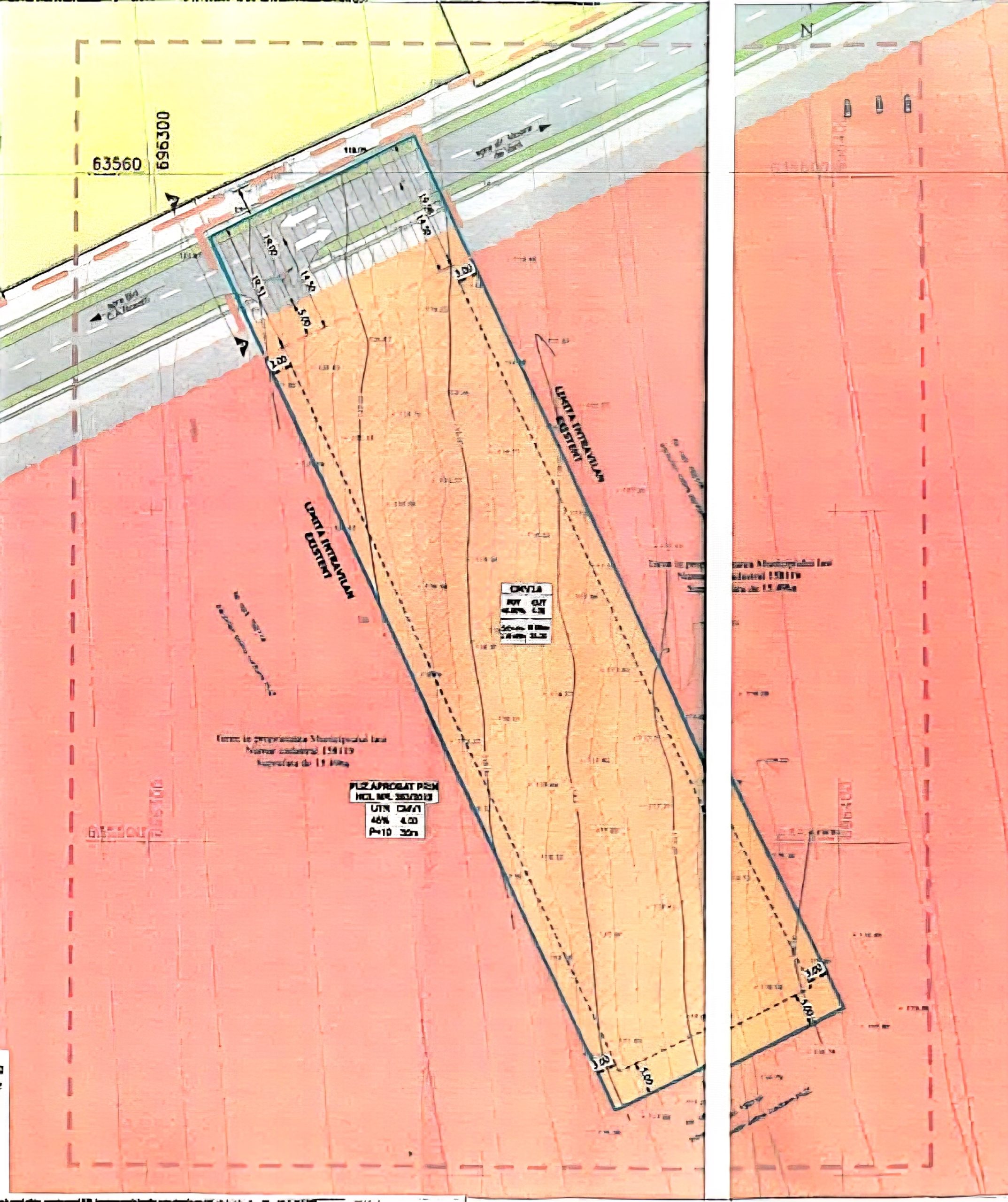
Membrii Comisiei de Analiză Tehnică din cadrul Direcției Județene de Mediu Iași vor discuta documentațiile depuse de Rădeanu Gabi Valentin pentru proiectul „Construire ansamblu mixed-use, conform PUZ aprobat prin HCL nr. 64 din 28.02.2024”. Ședința va avea loc pe 20 noiembrie 2025, la ora 13, la sediul instituției din Calea Chișinăului.

Proiectul este propus în municipiul Iași, pe strada Moara de Vânt nr. 379T. Documentația analizată se află în etapa de încadrare pentru emiterea acordului de mediu.

PUZ-ul prevede dezvoltarea unui ansamblu cu funcțiuni mixte, pe o suprafață de 4.942 metri pătrați. Conform avizelor existente, regimul de înălțime propus ajunge până la 35 de metri, echivalentul structurii S/D+P+11E+Eth, cu un procent maxim de ocupare a terenului de 45% și o cotă a spațiilor verzi de 30%.

O adresă transmisă de către prliectant către CNAIR arată că terenul nu ar fi afectat de traseul analizat pentru obiectivul „Autostrada Târgu Neamț – Iași – Ungheni și drumul de legătură către Spitalul Regional de Urgență”, fiind situat la aproximativ 160 de metri distanță față de axul rutier. (Vlad Mirea)

CITEȘTE ȘI

FOTO | Un ieșean vrea să construiască cinci duplexuri lângă Plopii Fără Soț, în Bucium

Zona Ciric – Aroneanu se dezvoltă rapid | Două proiecte imobiliare propuse lângă Aeroport de mai mulți afaceriști ieșeni

Comentarii

Niciun comentariu

Lasă un răspuns

Adresa ta de email nu va fi publicată. Câmpurile obligatorii sunt marcate cu *

Ultima oră

Te-ar interesa și

Articole recente

28 apr.
02:50 (EEST)
Bătrâni înfometați într-un cămin cu costuri de peste 9.000 lei/lună? Acuzații grave în Bucium, negate de DAS Iași
Căminul de bătrâni „Sf. Împărați Constantin și Elena” din Bucium, aflat în subordinea Direcției de Asistență Socială Iași al cărui director este…
27 apr.
12:33 (EEST)
PNL forțează interzicerea totală a jocurilor de noroc în Iași. Proiectul lui Chirica, modificat înaintea votului de astăzi
UDPATE Consiliul Local Iași a decis interzicerea tuturor jocurilor de noroc pe raza municipiului Iași, cu excepția celor de tip Loto. Consilierii…
27 apr.
12:11 (EEST)
„Nu vindem România la bucată”. Un deputat ieșean atacă planul de listare a companiilor energetice și financiare
Deputatul PSD de Iași, Maricel Popa aduce critici la adresa unui document guvernamental atribuit vicepremierului Oana Gheorghiu, pe care îl acuză că…
26 apr.
18:32 (EEST)
Vântul puternic lasă fără curent 20 de localități din Iași. Iată lista unde sunt echipele EON
Vremea severă produce efecte în județul Iași, unde intensificările de vânt și precipitațiile au afectat alimentarea cu energie electrică în mai multe…
26 apr.
15:52 (EEST)
Furtună la Miroslava: o femeie și un copil, loviți de un stâlp de iluminat doborât de rafale | VIDEO
Un incident grav a avut loc duminică, 26 aprilie 2026, în localitatea Miroslava, județul Iași, pe fondul condițiilor meteorologice severe care au…
26 apr.
12:14 (EEST)
Vântul puternic face ravagii în Iași. „Trebuia un mesaj Ro Alert pentru populație” VIDEO
Ca urmare a fenomenelor meteorologice manifestate prin intensificări ale vântului, pompierii militari ieșeni au fost solicitați să intervină în mai multe zone…

Ai un pont pentru noi?

Trimite-ne informația rapid și confidențial. O verificăm și revenim.

Scrie-ne pe WhatsApp
Aveți un pont?